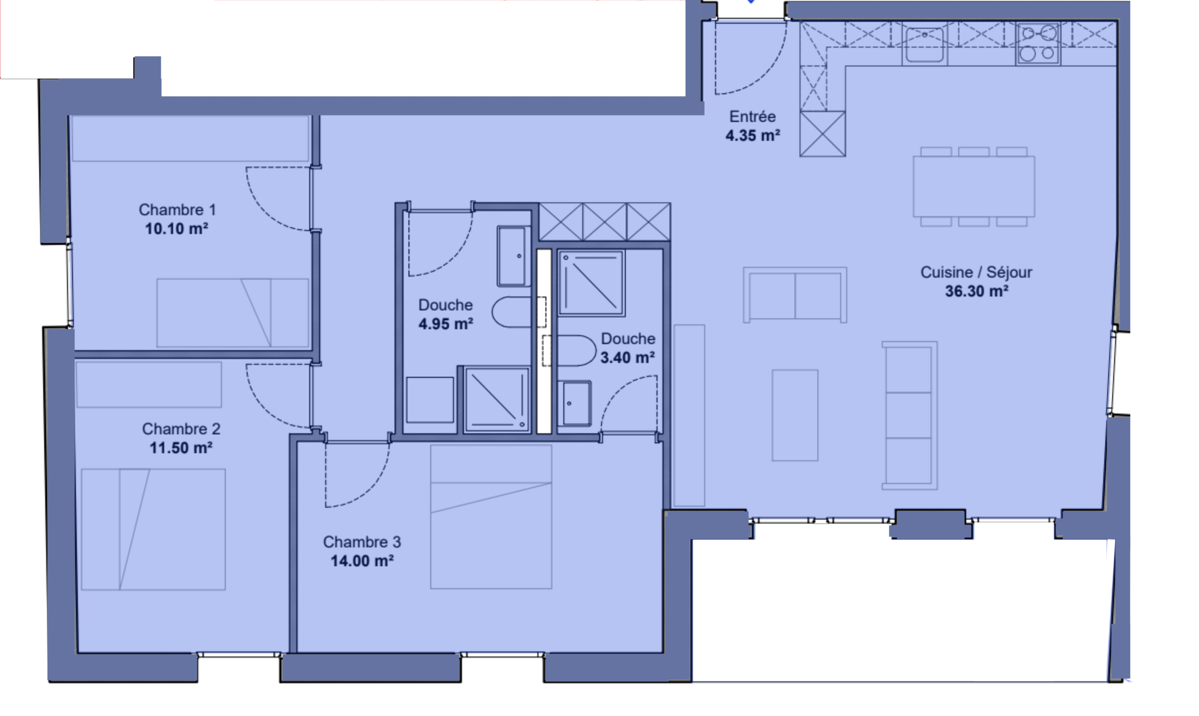
Surface brute d’un logement
La surface brute d’un logement en Suisse correspond à la somme de toutes les surfaces intérieures, y compris l’épaisseur des murs intérieurs et extérieurs, ainsi que les cloisons et éléments structurels du bâtiment.
En résumé, la surface brute inclut :
-
Les pièces habitables et tous les espaces intérieurs
-
L’épaisseur des murs extérieurs et intérieurs
-
Les cloisons fixes et éléments porteurs
Elle ne comprend généralement pas les balcons, terrasses ou espaces extérieurs.
Définition simple :
La surface brute est la superficie totale d’un logement, calculée en incluant tous les murs et cloisons, et représente la taille globale construite du bien.



